機電安裝工程的消聲減震,全面總結!
機電安裝工程的消聲減振對象包括設備和管道兩方面,既要防止包括制冷機組、空調機組、水泵、風機等設備產生較大振動和噪聲,也要防止管道傳播設備及自身產生的振動和噪聲。本文從設施及工藝兩個方面,總結了機電安裝工程在水泵、空調機組、排風排煙機組、冷凍機組、管道各專業上的常用消聲減震做法,全面!
一
消聲減振設施
· 自立式彈簧隔振器




· 限位式彈簧隔振器

· 防振吊鉤



· 聚氯丁橡膠水管柔性接頭

· 不銹鋼水管柔性接頭/連接器



· 防振墊片


· 消聲止回閥


· 管路DT型減振器

· 風管柔性接頭

· 消聲器或者消聲靜壓箱


二
消聲減振工藝
1
水泵消音隔振處理

臥式水泵隔振處理圖

水泵減震臺座減震形式

泵房隔振示意圖

浮筑基礎



用混凝土制作水泵慣性塊與減震器固定在一起

設備底部橡皮減震墊塊設置

金屬阻尼減震器

設備底部阻尼彈簧減震器設置

設置在設備底板兩側防位移的“靠山”

立式水泵隔振處理圖



變頻供水系統減振處理
2
空調機組消音隔振處理
· 吊裝式空調機組減振處理


備注:風量大于8000m³/h的機組不宜采用吊頂式安裝方式,推薦采用落地放置,否則應采取嚴格的減噪措施。




· 落地式空調機組減振處理



設備底部阻尼彈簧減震器設置
3
排風排煙機消音隔振處理
· 落地式風機

屋頂落地式風機安裝示意圖

彈簧隔振器

阻尼彈簧減震器
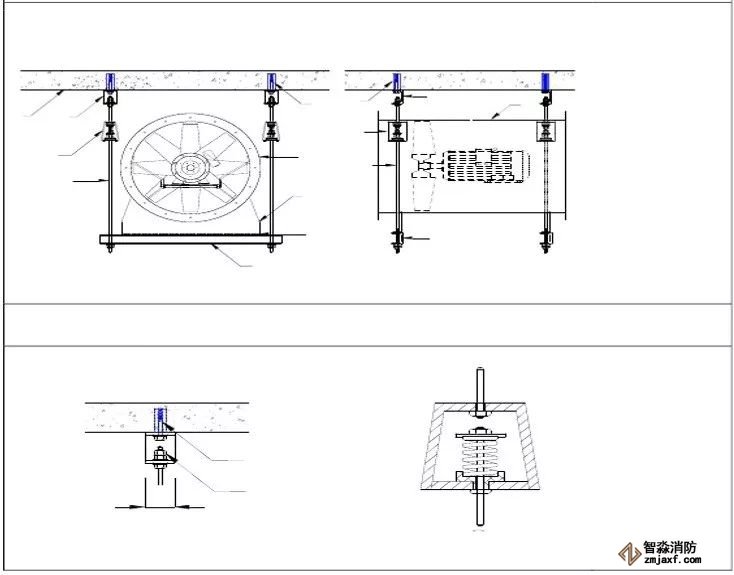
· 吊式軸流風機安裝

· 軸流風機防振吊鉤

· 吊式風機箱安裝

· 風機震動噪音處理




為防止軸流風機工作時擺動,用槽鋼做成框架固定在樓板上,圖為排風兼排煙風機下部設置阻尼彈簧減震器
4
冷凍機組消音隔振處理

設備底部金屬彈簧減震器設置

冷水機組底座設置彈簧減震器,落地支架應安裝在柔性短管的后側

在彈簧減震器下部設置水平度調整鋼板,便于設備一次就位
5
設備管道減振降噪


管道穿墻(板)處采用柔性材料填塞套管/管道間縫隙大樣

吊裝式管道減震


全不銹鋼波紋補償器

穿墻處金屬軟接
· 管道管夾消音隔振處理



· 立管消音隔振處理


· 管道落地支撐支架減震處理

· 管道消聲處理


金屬軟接
金屬軟管
波紋補償器
橡膠軟接頭

管道減振-橡橡膠減震墊

防水帆布接頭


風管與風機應采用柔性短管連接



靜壓箱
· 冷卻塔消聲處理


· 中央空調外機降噪

機電安裝工程設計中對消聲減震的具體措施的簡要歸納:
1. 建筑機電工程中,除了對風機、水泵等產生振動的設備設置彈性減振支座外,還應在風機與管路之間采用軟管鏈接,軟管宜采用人造材料或帆布材料制作。
2. 水泵、冷水機組、風機盤管、空調機組等機電設備與水管之間用軟管連接,不使振動傳遞給管路。軟管有兩類:橡膠軟接管和不銹鋼波紋管。橡膠軟接管隔振減噪的效果很好,缺點是不能耐高溫和高壓,耐腐蝕性也差。在空調與采暖的水系統中多用橡膠接管。不銹鋼波紋管能耐高溫、高壓和耐腐蝕,但價格較貴,一般用于制冷劑管路的隔振。
3. 在管路的支吊架、穿墻處使用非燃軟性材料填充做減振處理。
4. 空調機組、水泵落地式設備可直接采用橡膠隔振墊隔振或彈簧復合減震器。
5. 振動較大的設備(如風機)吊裝時,采用減振吊鉤。
6. 選用高效、低噪聲水泵、風機,并使水泵、風機在最高效率點附近運行。
7. 按噪聲標準控制風管、風口風速,以滿足房間噪聲要求。
8. 設備機房內壁表面貼附吸聲材料及吸聲孔板,機房門采用消聲密閉門,使墻體有吸聲能力,等等。
智淼君安(江蘇)消防工程技術有限公司http://m.myxcl.org.cn/海灣消防安全有限公司主營:GST海灣消防報警設備銷售,消防工程施工改造,氣體滅火、電氣/漏電火災、消防水系統施工安裝,售后維修保養,檢測,調試,海灣消防網站:http://m.myxcl.org.cn/;海灣消防服務熱線:4006-598-119
本頁關鍵詞:
上一篇:消防工程從出圖到竣工的實施流程 下一篇:家裝水電設計與施工


蘇公網安備32058102002148號