T形、回形走道的宜與忌-消防安全疏散原則及應用!
T形走道和回形(環形)走道,是消防安全疏散設計中不可回避的問題,本文闡述基本原則及相關要求:
1、T形走道的每個出口方向,均應能到達安全出口。
2、倒T形走道的疏散形式,應予禁止。
3、特殊形式的T形疏散走道,應嚴格控制疏散距離。
4、沒有安全出口的回形(環形)疏散路線,不應采用。
5、典型錯誤示例!
6、疏散指示標志和排煙系統的設置要求。
一、T形走道的每個出口方向,均應能到達安全出口:
1、圖示1所示的T形走道,每個疏散方向均應能到達安全出口:

(圖示1)
2、圖示2所示的T形走道,僅有一個方向能到達安全出口,當人員從T字形走道出來時,如向左邊疏散,則因折返而大幅增加疏散時間,不應許可。確有需要時,應按袋形走道處理,并按最不利情況下的折返長度復核安全距離,參見圖示3。

(圖示2)

(圖示3)
注:本圖示僅有一個方向能到達安全出口,不應許可。確有需要時,宜按袋形走道處理,按最不利情況下的折返長度(2a+2b+c)計算疏散距離。比如,一二耐火等級的高層教學建筑:(2a+2b+c)≤15m。
圖示4中,出現了倒T形走道的疏散形式,人員可能在端頭的走道上來回往返,應予禁止。

(圖示4)
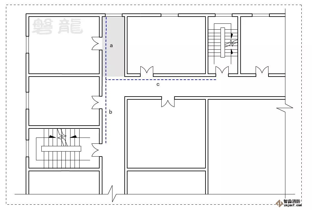
三、特殊形式的T形疏散走道,應嚴格控制疏散距離:
圖示5類似的疏散走道,陰影部位的短走道,存在誤導疏散的可能,不宜采用。確需采用時,應按直線方向行走的疏散習慣,保證a
注:這種疏散通道的形式較多出現。

(圖示5)

(圖示6)
注:本圖示5、圖示6的陰影部位走道,不宜采用。確需采用時,應按直線方向行走的疏散習慣,保證a具體疏散距離要求,應參照《建筑設計防火規范》5.5.17圖示2處理,同時參照相關專題“圖示修正:丁字形走道-安全疏散方案及應用”處置。
圖示7、圖示8所示的疏散走道,示例部位形成回形疏散路徑,沒有安全出口,不應采用。

(圖示7)

(圖示8)
圖示9的方案,上部區域形成了無安全出口的環形通道,不應許可。下部左右兩側形成T形路徑,不宜采用。

(圖示9)
六、疏散指示標志和排煙系統的設置要求:
對于T字形或回形疏散走道,必須輔以正確的疏散指示標志和應急照明系統,對于設置機械排煙系統的疏散走道,排煙口的設置宜使煙流方向與人員疏散方向相反。
1、疏散走道的疏散指示標志設置要求:
疏散走道的疏散指示標志設置,應與對應的疏散路徑相對應,疏散指示標志應指向最近的疏散路徑。圖示10的丁字形路口,需增設指示標志,指向疏散距離較短的方向:

(圖示10)
對于設置機械排煙系統的疏散走道,排煙口的設置宜使煙流方向與人員疏散方向相反,排煙口與附近安全出口相鄰邊緣之間的水平距離不應小于1.5m。圖示11的丁字形路口設置的排煙口,應設置在疏散距離較長的一側,使煙流方向與人員疏散方向相反:

(圖示11)
智淼君安(江蘇)消防工程技術有限公司http://m.myxcl.org.cn/海灣消防安全有限公司主營:GST海灣消防報警設備銷售,消防工程施工改造,氣體滅火、電氣/漏電火災、消防水系統施工安裝,售后維修保養,檢測,調試,海灣消防網站:http://m.myxcl.org.cn/;海灣消防服務熱線:4006-598-119
本頁關鍵詞:


蘇公網安備32058102002148號